一、 产品概述
国产一体化通信系统基础组成部分有 VPX 机箱、电源模块、主控模块、交换模块及各种通信功能模块,如图 1。VPX 机箱为背板、功能板、后插板提供安装载体;电源模块给其它单元模块和风扇供电;主控模块主要用于监视机箱内各模块电压、温度等健康状态信息,控制各业务模块的开机、关机、复位等状态;交换模块主要为通信单元内部功能板卡提供以太网总线互联,并对外提供一定的以太网接口,实现内外网交换。
图 1 整机前后视图
VPX 机箱内部还可以安装其他功能型板卡,例如:综合处理模块,光传输模块,被复线模块,超短波模块,区宽模块,北斗模块等通信模块,这些功能模块都可以为用户提供各种传输介质的数据通信的功能。
二、产品特点
a) 设备体积小,高度集成。可适用各种特种车辆,例如发射车,指挥车,运载车等,可按照需求来配置国产一体化通信系统数量;
b) 具有良好的管理特性,主控模块监视机箱内各模块电压、温度等健康状态信息,异常状态报警提示;
c) 主要元器件采用国产化设计,自主可控;
d) 支持保密模块的扩展,为网络安全和信息安全提供基础;
e) 国产一体化通信系统可安装各种通信模块,客户可按需求自由搭配通信方式,可实现多路通信冗余备份,保障通信可靠性。
3. 主要功能指标
a) VPX 机箱提供 16 个槽位,两个电源槽位,两个交换槽位,一个主控槽位,11 个通用槽位;机箱背板提供 iic 总线,以太网总线,stbus 总线,时统总线,友邻总线。以及机箱对外提供电源输入接口,两个认证接口,一个注钥接口和开关;
b) 电源模块提供 12v 和 3.3v 为机箱内部板卡供电,具有过压,欠压保护功能;
c) 主控连通两路 iic 总线,实现链路备份的管理板卡健康状态检查;
d) 交换模块提供 28 路以太网总线,实现机箱内部和外部的数据互联,实现数据的线速转发。
4. 结构设计
机箱结构均采用铝板材质做导电氧化处理,拼接处添加导电密封圈起到电磁屏蔽作用,密封圈保证机箱内部完全密封;在进风口及出风口均加有波导窗起到电磁屏蔽作用。
机箱外表面做喷涂处理,所有内部电器均做“三防”处理,所有紧固件均选用不锈钢材质,满足“三防”要求;
机箱内部器件均考虑加固措施,各结构件之间由紧固件固定,盘头螺钉自带垫圈防止松动,沉头螺钉安装过程中点胶装配,满足设备的冲击振动要求;
机箱所有螺纹孔增加钢丝螺套。
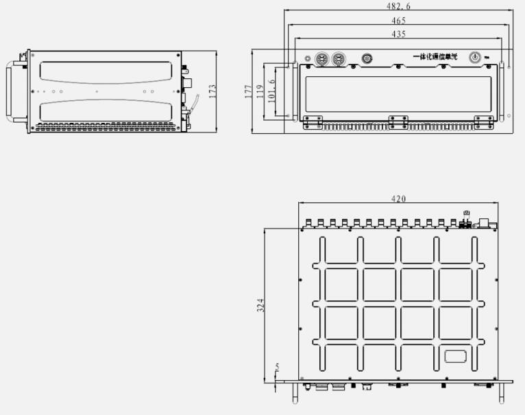
机箱结构二维尺寸图如图 2 所示,整机尺寸为 482.6mm(宽)×177mm(高)×324mm(深)。
图 2 机箱二维尺寸图
电源模块三维图如图 3 所示,模块采用铝板整铣结构,分上下盖板两部分。
图 3 电源模块三维图
两盖板间用螺钉紧固,能够有效提高模块的抗震性能,模块与机箱之间通过锁紧机构加固,在支撑约束的条件下,即可提高机箱自身的刚度,也可提高模块的抗振性能,满足抗振和热传导要求;模块内部器件均考虑加固措施,各结构件之间由紧固件固定,盘头螺钉自带垫圈防止松动,沉头螺钉安装过程中点胶装配,满足模块的冲击振动要求;
根据公司现有电源模块进行预估,电源模块重量实测约为 0.6Kg;满足指标不大于 1kg 的要求。其他模块前插板结构与电源板设计相似。控制与管理模块和交换能模块具有配套后插板,提供部分接口功能。
5. 设备全套组成
国产一体化通信系统整机由 VPX 机箱,保密模块,综合处理模块,北斗模块,交换模块,区宽模块,光纤被服模块,主控模块和电源模块组成(可支持其他通信模块的扩展)。国产一体化通信系统间可以通过不同传输介质(光纤线,被复线,区宽电台,超短波电台)实现数据通信,通过外网交换来设置各种介质的传输优先级。

6. 运维软件
可通过运维软件采集主控模块各板卡状态,通过图形化界面来直观监控各种板卡状态,实现界面操作,实现对板卡的状态配置修改保存,从而达到对通信链路的控制。
网络管理具备对网络规划、链路规划能力;具备对国产一体化通信系统电源、交换、光纤、被复线通信等功能模块参数配置、运行状态监控的功能;具有网络拓扑显示、通信中断告警、网络流量监测;具有实时频点优选和参数下发等功能。网络管理基于国产插件式集成管理框架进行设计,核心设计思想基于“硬件资源化、资源服务化和应用插件化”,软件具有较高的稳定性、可移植性和可扩展性,软件采用美观先进快捷的全新 UI 进行设计,可以细化到硬件模块的各指示灯和具体的通信链路状态的监控。
网络管理软件根据具体应用需求,可设计成 C/S 架构和 B/S 架构两种不同的版本。客户端/浏览器端应用根据具体机箱内所包含的硬件模块,主要包含主控、电源、交换、各通信单元的监控配置模块和链路监控模块。服务端服务为设备状态信息采集服务和设备配置管理服务,客户端与服务端主要采用 UDP 进行通信,以数据库作为中间件传输存储数据。